DMP Heusden vraagt opheldering over voorontwerp bestemmingsplan De Grassen

29 jul 2021, 12:17Nieuws
safe image 3
DMP Heusden
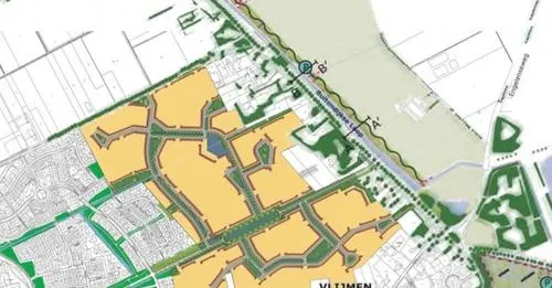
Op 13 juli 2021 ontving de gemeenteraad van Heusden een raadsinformatiebrief over het voorontwerp bestemmingsplan “De Grassen 2e fase”. Het college heeft besloten om vooruitlopend op de feitelijke procedure geen voorontwerp van het bestemmingsplan ter inzage te leggen en te bespreken in de raadsinformatievergadering Ruimte & Duurzaamheid.
Het niet ter inzage leggen en bespreken van een voorontwerp is redelijk gebruikelijk bij plannen met een beperkte omvang. Echter gaat het hier om een plan waar honderden woningen, een basisschool en andere maatschappelijke functies gebouwd gaan worden. Reden voor DMP om hierover vragen aan het college te stellen.
Het college geeft aan dat behoudens de randen van het plan, de school en maatschappelijk functies, het overige plan meer van hetzelfde is als fase 1 en dat eerder een Masterplan is vastgesteld. Tevens vinden er al gesprekken plaats met direct omwonenden om de invulling van de randen te bespreken, aangezien daar nog inhoudelijke keuzes te maken zijn. "De fractie van DMP Heusden vindt maximale participatie van inwoners en anderen vanzelfsprekend en dat reikt verder dan alleen in de raadsbrief genoemde randbewoners", aldus raadslid Ivan van Hemert die namens DMP om opheldering heeft gevraagd aan het college.
Het onderliggende Masterplan de Grassen (2013) is in opzet al weer bijna 10 jaar oud. Binnen dit tijdsbestek is een andere woonbehoefte ontstaan, waaronder meer sociale huurwoningen en starters- en seniorenwoningen. Daarnaast speelt nog de bezorgdheid over de inrichting van de Vijfhoevenlaan die midden door de Grassen loopt. Deze straat is niet alleen een gebiedsontsluitingsweg voor de nieuwe wijk, maar wordt vooral ook een nieuwe entree voor de kern Vlijmen. Veiligheid staat hierbij voorop en dat vraagt om een goede inpassing van (fiets)structuren binnen De Grassen en een aangrenzende bebouwing die past binnen de allure van een entree voor Vlijmen. Het is nu onduidelijk hoe al deze opgaven in het plan verwerkt gaan worden.
Lees hier onze vragen aan het college.
Begin de dag met het nieuws uit je gemeente met de gratis Nieuwsbrief. KLIK HIER en meld je aan. Aanvoerder van het lokale nieuws.
< Volg HeusdenNieuws ook via Facebook
< Wist u dat wij iedere morgen meer dan 2500 nieuwsbrieven verzenden
< Wist u dat wij iedere dag meer dan 10.000 bezoekers hebben op onze website
< Adverteren op Heusden.Nieuws.nl stuur een
mail
loading

Loading articles...

Loading